rvind Everland is strategically located near Nalsarovar in Ahmedabad, offering excellent connectivity and a tranquil living environment. The project is easily accessible via major highways, ensuring smooth travel to the city center, business hubs, and commercial areas. The vicinity includes reputed schools, healthcare facilities, and retail destinations, providing all essential services within reach. At the same time, the surrounding natural landscapes, open spaces, and low-density neighborhood create a serene and peaceful atmosphere. This blend of accessibility, convenience, and calm surroundings makes Arvind Everland an ideal choice for families and investors seeking a well-connected yet peaceful residential location.
Arvind everland
Sanand - NalsarovrRd
Overview
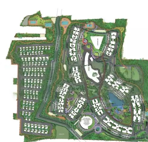
Arvind Everland is a large-scale plotted development by Arvind SmartSpaces designed to offer spacious, nature-centric living with modern infrastructure. Spread across a vast land parcel with around 1,100–1,200 plots, the project provides well-planned internal roads, landscaped zones, and thoughtfully designed plot layouts that ensure comfort, privacy, and long-term value. Everland focuses on creating a serene residential environment away from the city's congestion while still offering essential amenities, open green spaces, and a secure gated community setup. It is ideal for families and investors looking for a well-organized, future-ready plotted township with strong growth potential.
Pricing
Features & Amenities
- BasketBall
- Intercom
- Power Backup
- Kids Play Area
- creche
- football
- Swimming Pool
- kids pool
- Amphitheater
- Community Hall
- spa
- Party Lawn
- Senior Citizen Corner
- Multi-purpose Sports Court
- Café
- Library
- Indoor Games Room
- Supermarket
- Jogging Track
Video
